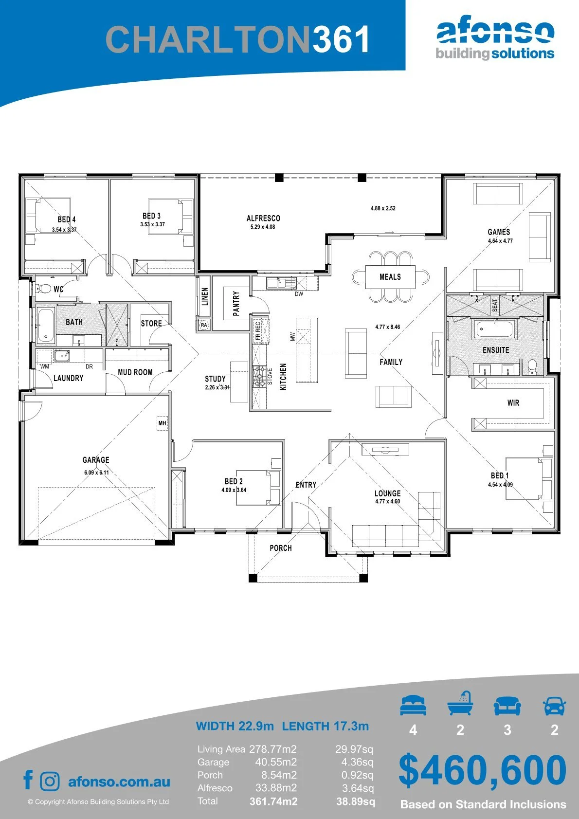
Charlton 361
The Charlton 361 floor plan features a spacious and practical layout, offering 4 bedrooms and 3 generous living areas.
Ideal for family living, it provides a large open-plan kitchen, dining and living space, with separate lounge spaces for added comfort.
The master suite includes a walk-in robe and luxurious ensuite, while the other bedrooms are well-sized with built-in wardrobes.
With ample storage, modern finishes, and an efficient flow, the Charlton 361 caters to modern family lifestyles.
Highlights
4 bedrooms
3 living areas
Study
Large alfresco
Double garage
Walk in pantry
Walk in linen
Mud room
Size
Living area: 278.77m2
Garage: 40.55m2
Porch: 8.54m2
Alfresco: 33.88m2
Total: 361.74m2
